Cultural Heritage Documentation

3D laser scanning really comes into its own when utilised within the heritage environment. The ability to accurately capture complex and irregular features quickly and remotely has obvious benefits over traditional survey techniques.

Heritage 3D Laser Scanning Survey

3D laser scanning is the ideal tool for rapid, high accuracy surveys of heritage information, capturing the finest details of complex sculptures, or decaying stonework on heritage buildings. We can also 3D mesh, model and visualise through our 3D modelling department.

Cultural Heritage can be defined as monuments, buildings, or landscapes of "outstanding universal value from the point of view of history, art or science." These sites are often under threat from environmental conditions, structural instability, increased tourism and development, and they are most likely under-funded, and hence, inadequately documented and maintained.  

Laser scanning, in combination with other digital documentation techniques and traditional survey, provides an extremely useful way to document the spatial characteristics of these sites. This spatial information forms not only an accurate record of these rapidly deteriorating sites, which can be saved for posterity, but also provides a comprehensive base dataset by which site managers, archaeologists, and conservators can monitor sites and perform necessary restoration work to ensure their physical integrity. 

3D laser scanning really comes into its own when utilised within the heritage environment. The ability to accurately capture complex and irregular features quickly and remotely has obvious benefits over traditional survey techniques. Combined with photographic imagery a comprehensive base dataset can be achieved.

Scan a Room, Building, or Landscape

A 3D laser scanner is used to make a spatial recording of an area at the site such as an interior room, the exterior side of a building, or a section of ground. The scanner will record the location of everything within a 360-degree area, items up-close and as far away as a few hundred feet from the location of the scanner. Multiple scans are usually required to fully record the subject of interest. Detailed high resolution and high dynamic range photography is usually collected at the same time.

heritage scanning using laser scanner

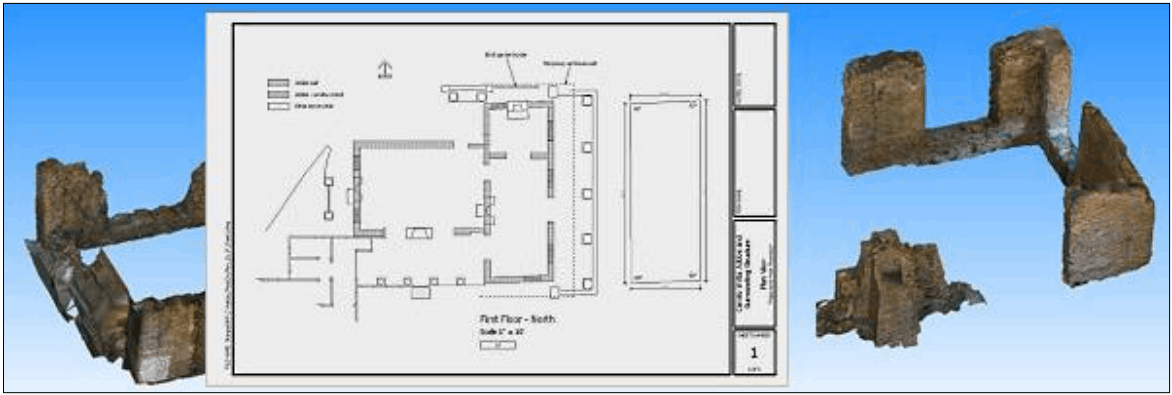
Conservation and Site Management

Measured 2D CAD drawings can be derived from the site recording and are typical deliverables for site management purposes. 2D plan views, elevation views, and site maps are required for standard documentation and are used for the National Register of Historic Places application and Historic Building Survey documents. Special online viewers can be used to review and measure a site in 3D space. More advanced applications might involve spatial analysis, detecting spatial changes over time, determining volume, or detecting spatial relationships

heritage

What are the Deliverables..??

Once collected this base data can be revisited over time as funds or need dictate to extract a variety of products including:

3D Models

Delivered in DWG, DGN or Revit (See BIM section) Format. 3D topographic surveys. RGB (Colour) point
clouds

2D Deliverables

Plans, Sections, Elevations, topographic survey

Mesh Models

Combining scan data with high-resolution digital imagery suitable for 3D printing

Animations

The 3D Laser Scanner can produce Animations and fly-throughs

Need to get a Quote.?

Contact us Today immediately